• Str. Gageni, Ploiesti Prahova
  • 0720 595545

Apt. 2 camere | Zona Vest – Kaufland | Renovat | Balcon mare

Ploiesti - zona Vest

ID Oferta: 5084

.

Pret: 65.900 €

WhatsApp-Image-2026-01-16-at-12.57.44_2.jpeg
Caracteristici
ID oferta 5084
Pret 65.900 €
zona Vest
Nr camere 2 camere
Etaj Etaj 4
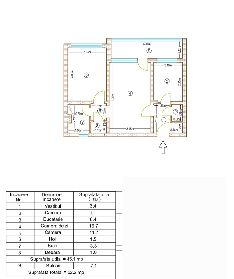
Suprafata 52 m2
Agent Reoer Grup
Actualizat la 2026-01-24 11:43:27
Nr afisari 20
Specificatii
Grad mobilare Nemobilat
Tip apartament Semidecomandat
Numar bai 1
Grad finisaj Ultrafinisat
Structura de rezistenta Beton
An constructie 1972
Gresie da
Faianta da
Parchet da
Geamuri termopan da
Termoficare da
Apa da
Gaz da
Canalizare da

De vânzare un apartament cu 2 camere, confort 1, semidecomandat, situat în zona Vest – Kaufland, una dintre cele mai căutate zone rezidențiale din Ploiești .

Imobilul este amplasat la etajul 4 din 10, într-un bloc  construit în 1972. Apartamentul beneficiază de un balcon generos, cu acces din bucătărie și living, oferind lumină naturală și un plus de spațiu util.

Locuința a fost recent renovată, este liberă de sarcini, cu acte la zi, fiind ideală atât pentru locuire imediată, cât și pentru investiție.

Caracteristici și dotări:

  • ușă metalică la intrare

  • usi interioare

  • ferestre cu geam termopan

  • finisaje moderne: gresie, faianță, parchet

  • pereți zugrăviți cu lavabil

  • repartitoare de căldură

  • separație gaze

Localizare excelentă, cu acces rapid la Kaufland Vest, Piața Aurora, mijloace de transport în comun, școli, grădinițe și alte facilități urbane.

Preț: 65.900 €

Pentru detalii suplimentare sau programarea unei vizionări 0720595545 .

postat in 2026-01-19 12:06:43
Trimite un mesaj


Trimite un mesaj

Newsletter

Abonează-te la newsletter pentru a primi cele mai noi oferte.


Oferte Similare
722_1.jpeg
41.000 EUR
suspendat 9 Mai, 2 camere 1A decomandat , 3/4
no_image.jpg
40.000 EUR
Eremia Grigorescu, 2 camere dec, et.8/10
no_image.jpg
37.500 EUR
Enachita Vacarescu, 2 camere 1A spatios, bloc 1986
no_image.jpg
43.000 EUR
Pod Inalt-Jet Oil, 2 camere decomandat mobilat
no_image.jpg
45.000 EUR
Eminescu, 2 camere dec., etaj 2/4
no_image.jpg
24.000 EUR
Eremia Grigorescu, 2 camere conf 2B, cu cash
no_image.jpg
43.000 EUR
Cantacuzino-Jet Oil, 2 camere dec. confort1A
no_image.jpg
33.000 EUR
Cina-2 cam. parter cu balcon, semidecomandat
no_image.jpg
45.000 EUR
Sud-Eminescu, 2 camere et.3/4 imbunatatit
no_image.jpg
40.000 EUR
Sos. Vestului, 2 cam. decomandat
0720595545